人気のJR尼崎駅徒歩約12分「リバーフラット1LDK」エレベーター有!
尼崎市次屋2丁目14-19
セコムホームセキュリティ・オートロック・宅配ボックス
フレッツ光インターネット無料・人感センサー照明(ホール)・二重サッシ(南東側)
自転車バイク置場有(無料)・大型バイク相談可
二人入居・社宅相談可・コンビニ、バス停目の前
詳細はお問い合わせください!
物件概要
- 種別
- 賃貸マンション
- 月額賃料
- 85,000円(税込)
- 管理費
- 7,000円
- 敷金
- 無し
- 礼金
- 170,000円
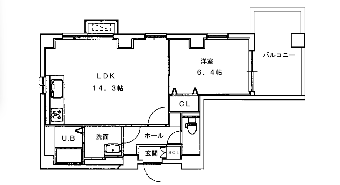
- 使用面積
- 49.35㎡
- 間取り
- 1LDK
- 建物構造
- RC造
- 築年月
- 2012年5月(築13年)
- 階数
- 3階建/2階部分
- 駐車場
- なし(近隣駐車場有り)
- 接道状況
- 北東側公道約4m・南東側公道約10m
- 現況
- 入居中(R8年3月末退去)
- 引渡
- R8年4月中旬予定(改装後)
- 契約期間
- 2年更新
- 設備
- 関西電力・上下水道・都市ガス・宅配ボックス
メールボックス・自転車バイク置場有 - 火災保険
- 加入要
- 賃貸保証会社
- 加入要
- 注意事項
- ※資料と現況が異なる場合は現況を優先します。
※ペット不可
※事務所・民泊・短期貸し不可
※連帯保証人必要
※上場会社の場合、保証会社・火災保険なし可
※バイク置場(原付以上は、月3000円) - 取引態様
- 仲介
- 物件担当
- 坂元
アクセス
- 所在地
- 尼崎市次屋2丁目14-19
- 交通
- JR東海道線尼崎駅徒歩約12分
JR東海道線尼崎駅行きバス停「潮江北口」徒歩約1分