阪神高速豊中南ICすぐ!!「豊中市名神口3丁目貸倉庫約116坪・クレーン2基あり」近隣住居なし!
豊中市名神口3丁目11-3
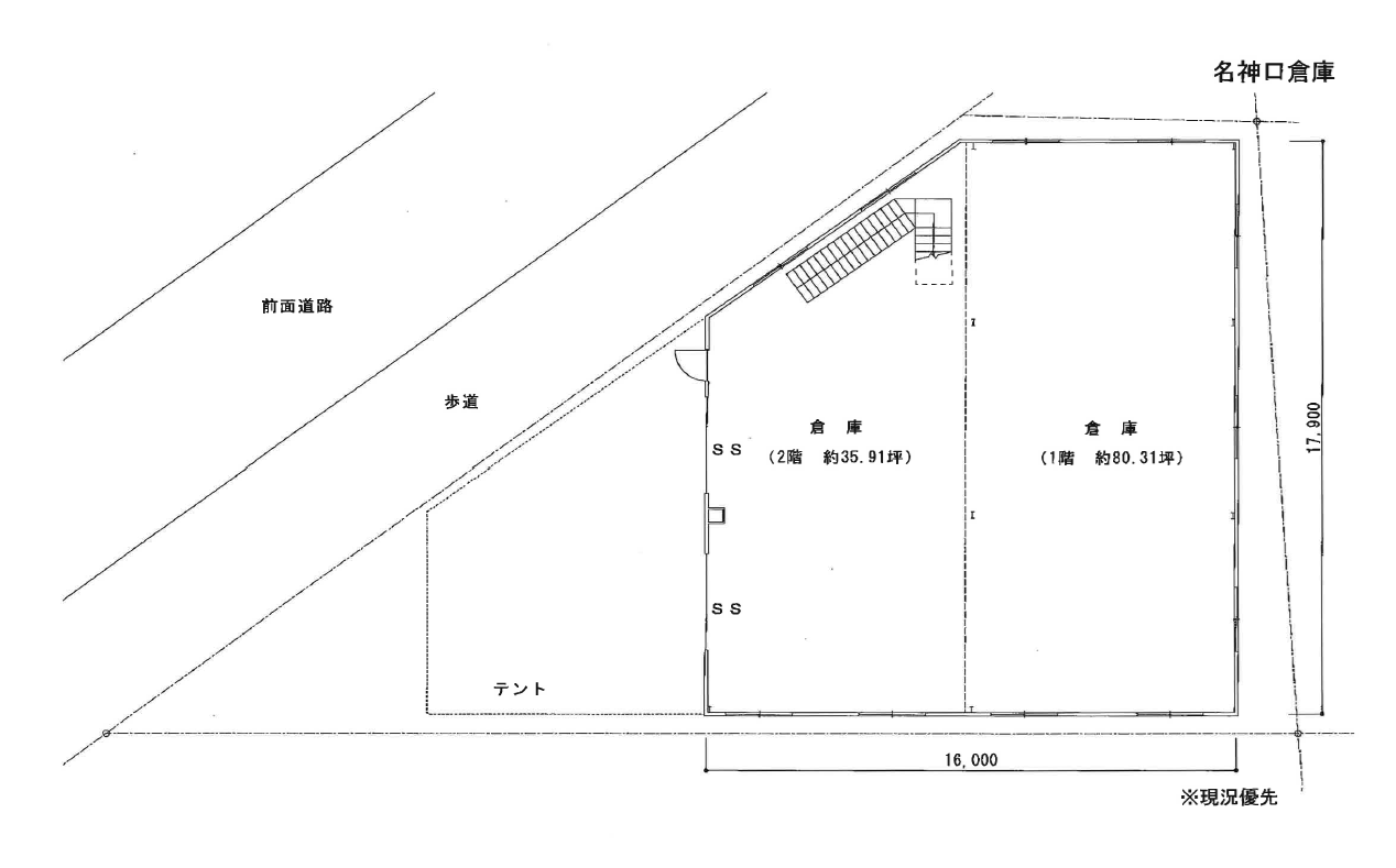
準工業地域・駐車スペース有・1階倉庫約80.31坪、2階約35.91坪
土地約134坪・鉄骨造2階建・名神高速道路側道沿い
詳細はお問い合わせください!
物件概要
- 種別
- 貸倉庫
- 月額賃料
- 770,000円(税込)
- 敷金
- 5,600,000円
- 礼金
- 1,540,000円
- 土地面積
- 443.48㎡
- 1階面積
- 265.50㎡
- 2階面積
- 118.72㎡
- 合計面積
- 384.22㎡
- 建物構造
- 鉄骨造
- 築年月
- 1985年7月(築40年)
- 階数
- 2階建
- 駐車場
- 有り
- 用途地域
- 準工業地域
- 建ぺい率
- 60%
- 容積率
- 200%
- 現況
- 賃貸中
- 引渡
- 2026年8月以降
- 設備
- クレーン1t・0.5t
- 火災保険
- 加入要
- 賃貸保証会社
- 加入要
- 注意事項
- ※資料と現況が異なる場合は現況を優先します。
- 取引態様
- 仲介
- 物件担当
- 坂元
アクセス
- 所在地
- 豊中市名神口3丁目11-3
- 交通
- 阪急宝塚線庄内駅徒歩約18分